
Роскошная квартира-студия, площадь которой всего лишь 26 квадратных метров.
В больших апартаментах одна комната может занимать около 30 квадратных метров, в данном случае на 26 «квадратах» помещается целая квартира. На первый взгляд может показаться, что это слишком маленькая площадь для полноценного жилья. Однако, дизайнеры сумели доказать обратное и превратили малогабаритку в роскошную студию, в которой есть все необходимое.

Маленькая, но очень стильная и уютная квартира-студия площадью 26 квадратных метров.
Этот проект доказывает, что даже на скромной площади можно сделать полноценную и очень комфортную квартиру. Несмотря на то, что в распоряжении дизайнеров было всего 26 квадратных метров, они решили поиграть на контрастах, использовав черную и белую цветовую гамму. Хотя считается, что темные тона наоборот зрительно уменьшают помещение и делают его еще более жестким и суровым. Для того, чтобы расширить пространство и увеличить количество света, дизайнеры добавили белые глянцевые поверхности и аксессуары в светлых оттенках.

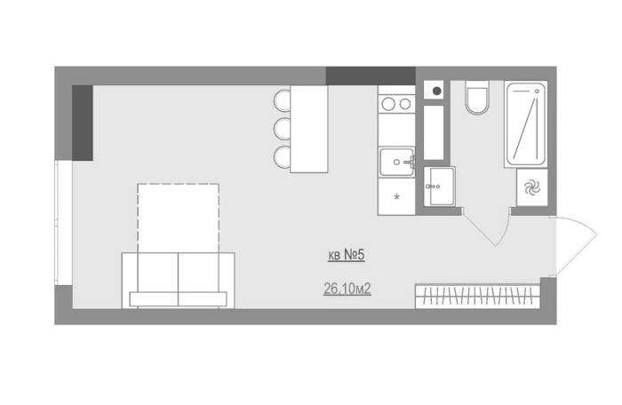
План небольшой квартиры-студии, площадь которой 26, 10 квадратных метров.

Белый кухонный гарнитур смотрится очень стильно и делает обеденную зону более светлой.
Материалы для облицовки также служат хорошим источником контраста, сочетая натуральное дерево с бетоном. А столешница журнального столика из черного мрамора придает особый шик интерьеру. Правда, для того, чтобы раздвинуть диван и превратить его в полноценное спальное место, жильцам придется каждый раз отодвигать стол. Кухня оформлена в светлых тонах. Для того, чтобы сэкономить пространство, дизайнеры решили не останавливаться на стандартном столе и оформили обеденную зону наподобие барной стойки с высокими табуретами.

Оригинальные аксессуары дарят ощущение тепла и уюта.

Объемная надпись «feeling good» («чувствую себя хорошо») — своеобразный девиз для жильцов этой квартиры.
Декор ванной комнаты тоже выполнен на контрасте — в черном и белом цветах. В санузле помещается все необходимое: ванная, унитаз, раковина со стеллажом для хранения различных туалетных принадлежностей и стиральная машинка.

Черно-белый санузел, в котором размещены ванная, унитаз, раковина с полками и стиральная машинка.
Объемная надпись «feeling good» («чувствую себя хорошо») — своеобразный девиз для жильцов этой квартиры. И действительно, вряд ли в таких апартаментах можно чувствовать себя плохо. Творческий подход дизайнеров к обустройству малогабаритных квартир демонстрирует, что даже небольшое количество квадратных метров могут стать уютным и комфортным домом. Хорошим примером является квартира-трансформер, пространство которой увеличивается в считанные секунды.
Источник: