
Лайково — город, который будет построен с нуля в окрестностях Москвы.
В Подмосковье идет подготовка к осуществлению грандиозного архитектурного проекта. Это будет первый за последние 100 лет город в классическом стиле, построенный с нуля! В нем прекрасно объединятся российские архитектурные традиции, современные технологии и вся передовая инфраструктура. Проект ждет перспективное будущее.

Архитекторский проект Максима Атаянца.
Разработкой концепции города Лайково занимался российский архитектор Максим Атаянц. Девелопером выступила компания Urban Group.
Лайково станет ближайшим к столице сателлитом. Он расположится в 5 минутах от Рублевки. Таким образом разработчики попытаются стереть разительную границу между территориями проживания среднего класса и столичной элиты. По словам гендиректора Urban Group Андрея Пучкова, на сегодняшний день «стираются границы между классами недвижимости, уходит четкое разделение по социальным или иным признакам». Именно поэтому в Лайково можно будет приобрести жилье стоимостью от 1,9 до 45 млн. рублей.

В пяти минутах от Рублевки построят новый город Лайково.
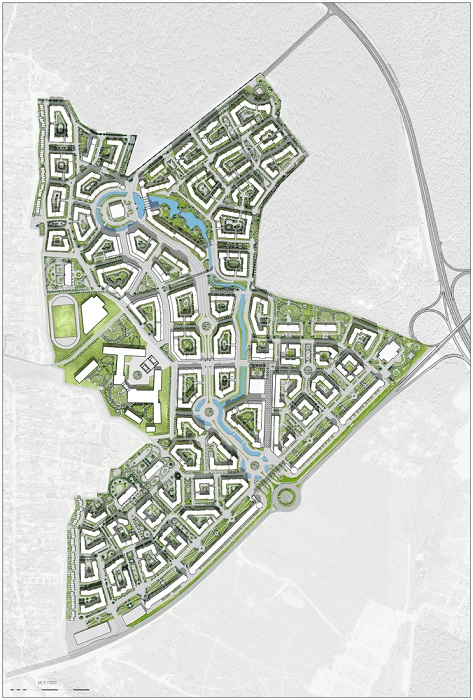
На территории 116,84 га обещают построить 62 дома от четырех до двенадцати этажей и 111 таунхаусов (малоэтажных домов на несколько многоуровневых квартир). В Лайково впервые будет представлен формат жилища для предпринимателей (квартиры-офисы). Это означает, что в квартире будет два входа: один для домочадцев, а второй – для клиентов. Подобный формат оценят адвокаты, стилисты, врачи, которым больше не понадобиться искать съемную территорию для своих практик.

Лайково — город, который строят с нуля в Подмосковье.
Помимо жилых помещений и развитой инфраструктуры, разработчики позаботились и о зеленой составляющей Лайково. В центре обустроят парк площадью 2 га. Вдоль города будет проходить искусственный канал протяженностью 4 км. Через него построят 19 мостов, пять из которых – пешеходные. На одном из мостов построят даже несколько квартир по примеру итальянской Флоренции.

Генеральный план будущего города Лайково.
Прекрасная классическая архитектура будет сочетаться с новейшими эко-технологиями. Многие дома получат крыши с зелеными насаждениями, вдоль подземных паркингов разобьют клумбы. Такие меры не только украсят урбанистический ландшафт, но и снизит содержание CO2 на 27 процентов. Владельцы электрокаров не будут переживать, где подзарядить их автомобиль, т. к. специальные розетки установят по всему городу.

К 2023 году планируют построить целый город Лайково с нуля.
Город планируют сдавать в эксплуатацию в 3 очереди. Первая очередь будет готова к 2018 году. Полностью построить город хотят к 2023 году. Urban Group обещает вложить в возведение Лайково 71 миллиард рублей.
Ну а пока строительство города еще не реализовано, любопытно будет вспомнить несколько столиц, которые были построены с нуля в ХХ веке.
Источник: